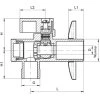
KFA rohový guľový ventil s rozetou 1/2" x 3/4"
Kód: 707 010 20Podrobný popis
KFA rohový guľový ventil s rozetou 1/2" x 3/4"
Materiál: mosadz
Povrchová úprava: chróm
Páčka: hliník
Rozmer: 1/2" x 3/4"
L (mm): 47,8
H (mm): 28,5
L1 (mm): 14
L2 (mm): 23
PN (bar): 10
Dodatočné parametre
| Kategória: | VENTILY |
|---|---|
| Záruka: | 2 roky |
| EAN: | 5907571700467 |
| Výrobca: | KFA ARMATURA |
Buďte prvý, kto napíše príspevok k tejto položke.
Pridať komentár
